Bienvenido a LGMG Authorized Distributor
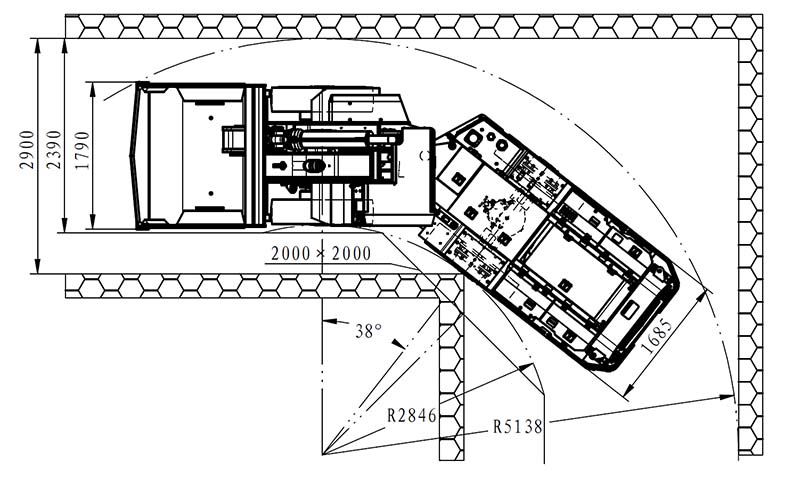
La UL50 es una scooptram subterránea equipada con un cubo de 2.5 m³ y una capacidad nominal de 5 toneladas. Está diseñada para las operaciones de carga, transporte y descarga de roca subterránea. Es aplicable a túneles subterráneos de más de 3m x 3m y es una opción ideal para todo tipo de minas metálicas.
Características del producto

Ficha Técnica

Dimensiones

